中平邊間大戶鼎加加4房 (Z00305)
總價 1,830 萬元 降價通知我
座落 新北市新莊區中平路
坪數 49.67
地坪 13.88
單價 36.84 萬元
物件型態 公寓
用途現況 住宅; 空屋
謄本用途 住家用
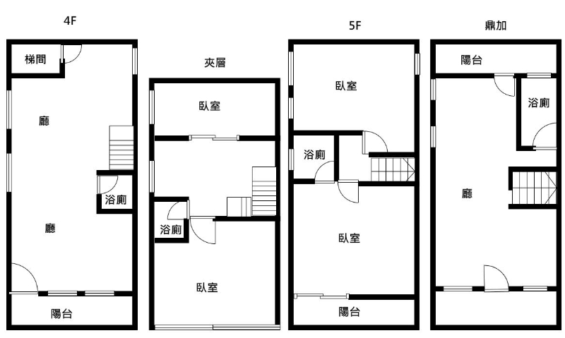
格局 4房/ 3廳/ 4衛/ 3陽台
樓層 4 / 5樓
朝向 座北向南
戶數/電梯 4戶, 每層2戶
屋齡 36年11個月
建物結構 RC
建物外觀 二丁掛
車位
邊間
採光 3 面
瓦斯種類 天然管線
公園綠地 中港公園
學校學區 中港國小
特色說明
中平商圈機能佳
稀有大空間、方正好規劃
鄰近公園、學校 超方便
權狀資料
主建物 41.19 附屬建物 3.17
公共設施 5.31 土地面積 13.88
公設車位 0.00 權狀車位 0.00
使用分區 住宅區
  1. 坪數=主建物+附屬建物+公共設施(包含公設車位)+權狀車位。
  2. 主建物係指客廳、餐廳、臥房、浴室、廚房等室內面積。
  3. 公共設施係指區分所有建物之全部或部分所有共用之建物面積,像是樓梯間、電梯間、屋頂突出物等。
  4. 上述係由一平方公尺=0.3025坪換算,詳細資料仍以地政機關核發之謄本為準。
新莊中平特許加盟店
鉅昇房屋有限公司
(02)2990-8522
感謝點閱,歡迎與我聯絡!
您好,我是粘勝凱。
請撥我的手機 0973-878-765
LINE ID:macnian
由我為您提供服務。

※ 本網頁所刊登照片如為道路街景或土地示意圖,非廣告標的所在地僅供參考,實際狀況請依使用執照或謄本所載為準。
中平邊間大戶鼎加加4房,新北市新莊區中平路
中平邊間大戶鼎加加4房,新北市新莊區中平路
中平邊間大戶鼎加加4房,新北市新莊區中平路
中平邊間大戶鼎加加4房,新北市新莊區中平路
中平邊間大戶鼎加加4房,新北市新莊區中平路
中平邊間大戶鼎加加4房,新北市新莊區中平路
中平邊間大戶鼎加加4房,新北市新莊區中平路
中平邊間大戶鼎加加4房,新北市新莊區中平路
中平邊間大戶鼎加加4房,新北市新莊區中平路
中平邊間大戶鼎加加4房,新北市新莊區中平路
中平邊間大戶鼎加加4房,新北市新莊區中平路
中平邊間大戶鼎加加4房,新北市新莊區中平路
中平邊間大戶鼎加加4房,新北市新莊區中平路
中平邊間大戶鼎加加4房,新北市新莊區中平路
中平邊間大戶鼎加加4房,新北市新莊區中平路
中平邊間大戶鼎加加4房,新北市新莊區中平路

資料處理中,請稍等。